
L’Ajuntament de Benissa ha publicat els plecs del contracte per a finalitzar les obres del nou Ajuntament que s’ubicarà a les Escoles Velles. L’import del contracte es preveu en 2,5 milions d’euros i el termini d’execució serà de nou mesos. Els contractistes poden oferir millores com la urbanització exterior, enllumenat, instal·lació de rètols, mobiliari i sistema antirobatori.
En aquesta quarta fase es preveu fer un estudi amb georadar per a comprovar si es produeixen moviments al terreny, instal·lar aïllament tèrmic, tabiqueria, substituir la barana de l’escala principal, treballs amb algeps, instal·lacions d’electricitat, il·luminació i informàtica, instal·lació de sistemes d’evacuació d’aigües residuals, fontaneria, sanitaris, climatització, fusteria, vidres i pintura.
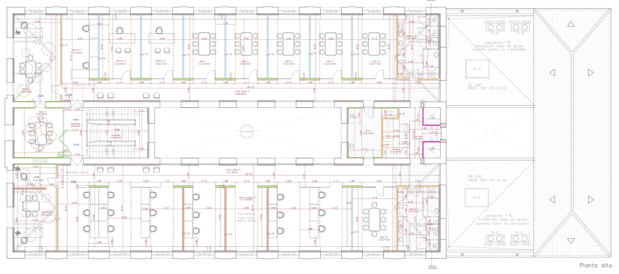
No obstant això, el més interessant és el projecte d’obres preparat per l’arquitecta benissera Reme Giner, on a través de plànols i simulacions realistes es pot veure com quedarà el nou ajuntament.
Així les coses es preveuen espais de treball diàfans, separats per envans de separació entre els diferents departaments, amb una estètica moderna i respectant les característiques de l’edifici, com els sostres de fusta. En la planta baixa hi haurà diferents zones de treball, despatxos i la sala de plens, amb una capacitat entre 30 i 40 persones.
A la planta superior es trobaran els despatxos d’Alcaldia i Secretaria, la zona de serveis amb material de papereria i altres zones de treball i despatxos.
S’espera que el nou Ajuntament permeta centralitzar en les Escoles Velles bona part de les dependències municipals que hui en dia es troben disperses en diferents edificis municipals.












Comentaris a la notícia
Albert
Hola,espectacular seguro será una referència en la comarca.
Enhorabuena.
Me queda saber si en la zona donde estaba el Central Garaje está previsto hacer zona de aparcamiento o zona de servicios??
Ese solar privilegiado es ya propiedad del Ayuntamiento??
Marc
Muy chulo, diseño muy acertado.
Falta una zona de aparcamiento, supongo que ya lo tendrán previsto, porque si tenemos que dar vueltas para aparcar en el sitio que esta ubicado mal lo tenmos los que lo visitamos asiduamente.
Felicidades
Marc
Muy chulo, diseño muy acertado.
Falta una zona para dejar los coches, supongo que ya lo tendrán previsto, porque si tenemos que dar vueltas para aparcar en el sitio que esta ubicado mal lo tenmos los que lo visitamos asiduamente.
Felicidades
Voleu deixar un comentari a la notícia?